Terreno Residenziale

Parabiago (Parabiago) - Milano

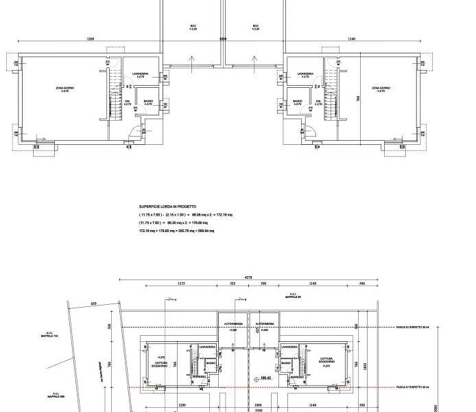
Descrizione

Terreno edificabile di mq 1150 a Parabiago, zona semicentrale e residenziale, ideale per la costruzione di due ville singole, con accesso su strada asfaltata.\nZona Urbanistica\nUT R2B - Tessuto di recente impianto prev. residenziale - bassa densità edilizia\nINDICE FONDIARIO: 0.5 mq/mq\nSUPERFICIE COPERTA: 50%\nALTEZZA MASSIMA: 10.60 m\nAREA LOTTO EDIFICABILE: 42.80 + 39.80 / 2 X 27.60= 1139.88 mq\nSUPERFICIE LORDA MASSIMA (SLM): 569.94 MQ


€ 120.000

Caratteristiche principali

Urbanizzazione primaria

  • Strade residenziali
  • Pubblica illuminazione
  • Spazi sosta o parcheggio
  • Spazi verde attrezzato
  • Rete fognaria
  • Rete idrica
  • Rete energia elettrica
  • Rete gas
  • Rete telecomunicazioni

 Richiesta informazioni