Terreno edificabile residenziale

Torbole Casaglia (Torbole Casaglia) - Brescia

Descrizione

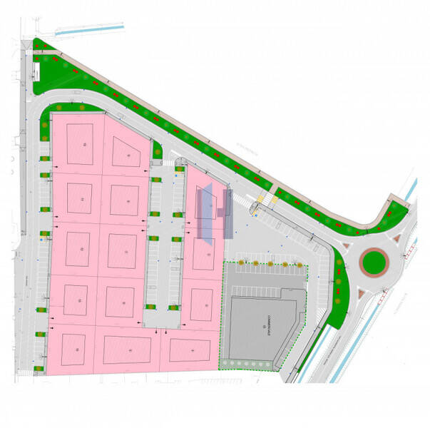
Questo terreno edificabile residenziale si trova in una posizione strategica, già urbanizzata e dotata di parcheggi, aree verdi e piste ciclabili che promuovono uno stile di vita attivo e salutare. La vicinanza a un supermercato rende la quotidianità comoda e accessibile, inoltre, nelle immediate vicinanze sono presenti oratorio, scuole ed una fermata dell'autobus che facilitano gli spostamenti verso il centro città e altre destinazioni. Il terreno offre un ottimo indice di edificabilità con forme geometriche versatili adatte alla realizzazione sia di ville singole che bifamiliari o contesti plurifamiliari indipendenti. La varietà delle dimensioni disponibili consente progettazioni personalizzate per ogni esigenza abitativa. Torbole Casaglia è conosciuta per il suo ambiente tranquillo ma al tempo stesso dinamico, ideale per famiglie e professionisti in cerca della giusta combinazione tra comodità urbana e serenità suburbana. --- annuncio pubblicato con GESTIONALEIMMOBILIARE.it

€ 117.000

Caratteristiche principali

Urbanizzazione primaria

  • Strade residenziali
  • Pubblica illuminazione
  • Spazi sosta o parcheggio
  • Spazi verde attrezzato
  • Rete fognaria
  • Rete idrica
  • Rete energia elettrica
  • Rete gas
  • Rete telecomunicazioni

 Richiesta informazioni