Terreno a Olbia aeroporto

Olbia (Olbia) - Sassari

Descrizione

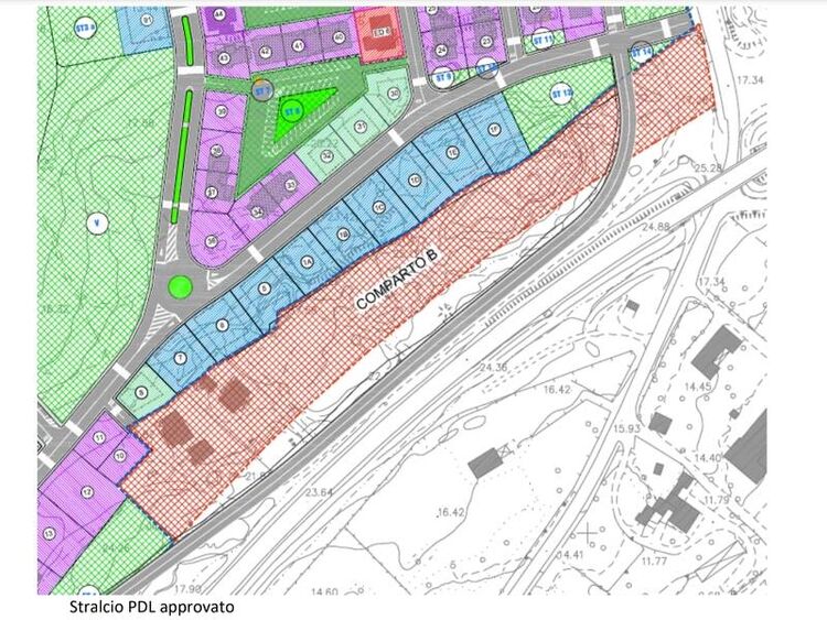
Terreno edificabile a Olbia - Vicino Aeroporto Costa Smeralda Terreno edificabile in zona strategica di Olbia, a pochi minuti dall'aeroporto e dalle principali vie di comunicazione (SS729, SP24, E840). Superficie catastale 13.314 m² con volumetria edificabile 7.134 m³ (Comparto B - destinazione residenziale). Ottima accessibilità, vicino a servizi, scuole e al centro città. Ideale per progetti residenziali o investimento immobiliare in area in forte crescita. Prezzo: € 999.000 Contatti: Tel: +39 335 7010140 Email: teskio1976.sm@gmail.com WhatsApp: +393357010140


€ 999.000

Caratteristiche principali

Urbanizzazione primaria

  • Strade residenziali
  • Pubblica illuminazione
  • Spazi sosta o parcheggio
  • Spazi verde attrezzato
  • Rete fognaria
  • Rete idrica
  • Rete energia elettrica
  • Rete gas
  • Rete telecomunicazioni

 Richiesta informazioni